Kenmerken
Vraagprijs
€ 375.000,- k.k.
Bouwjaar
1991
Perceeloppervlakte
157 m2
Woonoppervlakte
87 m2
Inhoud
308 m3
Aantal slaapkamers
3
Aantal kamers
5
Tuin
Met tuin
Garage
Zonder garage
Omschrijving
Wijnen Vastgoed presenteert u deze instapklare geschakelde woning gelegen aan een rustig woonplein Heusden. De woning is aan de achterzijde uitgebouwd met een tuinkamer en er is een eigen parkeerplaats bij de woning. Verder zijn er 3 slaapkamers en een moderne badkamer aanwezig op de 1e verdieping. Een perfecte starterswoning!
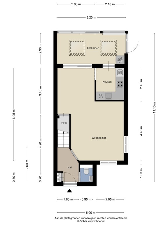
BEGANE GROND
Entree aan de voorzijde van de woning, hal met meterkast, moderne toiletruimte (2023) met hangend toilet en fonteintje en trapopgang naar de 1e verdieping. Z-vormige woonkamer met ruime zithoek aan de voorzijde van de woning. Dankzij de vele raampartijen is er veel lichtinval in de woning. De woonkamer is afgewerkt met een laminaatvloer, stucwerkwanden en een spuitwerkplafond. Ruimte voor een eettafel aan de achterzijde van de woning met open verbinding naar de keukenruimte. Deze is ingericht met een keuken in een hoekopstelling en voorzien van een koelkast, combimagnetron, vaatwasser en een gaskookplaat.
De aangebouwde tuinkamer is bereikbaar via de schuifpui vanuit de eethoek op via de loopdeur vanuit de keuken. De tuinkamer is afgewerkt met een tegelvloer en is een multifunctionele ruimte die gebruikt kan worden voor diverse functies zoals een kantoor, bijkeuken of hobbyruimte. Via een schuifpui vanuit de tuinkamer toegang tot de achtertuin. Via de loopdeur aan de zijkant toegang tot de zijtuin bij de woning.
1e VERDIEPING
De overloop geeft toegang tot 3 slaapkamers en de moderne badkamer. De slaapkamers zijn afgewerkt met een laminaatvloer, stucwerkwanden en een spuitwerkplafond. De moderne badkamer is in 2023 vernieuwd in is ingericht met een inloopdouche, wandmeubel met wastafel, hangend toilet en een designradiator. Verder zijn hier ook de witgoedaanslutingen aanwezig. Vanuit de overloop via een vlizotrap toegang tot de zolderverdieping in gebruik als bergruimte.
BUITEN
De tuin is opgedeeld in twee gedeelten; de achtertuin en de zijtuin. De achtertuin is onderhoudsvriendelijk aangelegd met bestrating en kunstgras gazon. De achtertuin biedt veel privacy en is gelegen op het noorden. De zijtuin is gelegen naast de woning en hier is een ouder tuinhuisje aanwezig en verder is er een achterom aanwezig.
ALGEMENE ZAKEN
- Een instapklare woning in een interessante prijsklasse!
- De woning is door de vorige eigenaar in 2008 uitgebouwd.
- De woning is voorzien van een goed isolatiepakket met dak-, vloer- en muurisolatie en er liggen 10 zonnepanelen op het dak van de woning(2021).
- Het toilet en de badkamer zijn in 2023 vernieuwd
- De voorgevel is in 2023 opnieuw gevoegd en geimpregneerd.
- In 2023 is de groepenkast in de woning vernieuwd en de CV-ketel dateert van 2020.
- Er is een waterontharder aanwezig.
- Nieuwsgierig geworden? Plan snel een bezichtiging en ontdek zelf de mogelijkheden van deze woning!
- De koper dient een bankgarantie af te geven of een waarborgsom (ter grootte van 10% van de koopsom) te storten bij de notaris. Deze garantie of waarborgsom dient als zekerheid dat de koper zijn verplichtingen nakomt.
- Bezichtiging ter plaatse na vooraf gemaakte afspraak met

























